
Your Greater Los Angeles
ADU Builders
Start your building journey with ALTO here
Building an ADU can oftentimes be a stressful and confusing process. We're here to make as clear, efficient, and on budget as possible. Start exploring our pages below to understand more information around costs, design, and regulations.
Building an ADU has never been easier!
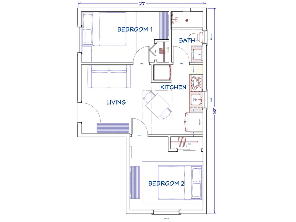
Interest in ADU projects has skyrocketed, as homeowners look to maximize their property's potential. ADUs offer versatile solutions—whether it's generating rental income, providing space for family members, or creating flexible living areas. Explore how our clients have transformed their properties with beautifully designed ADUs.
Relaxed Setbacks
Makes more of your property available for building.
No Parking Requirements
Enables you to rent your unit with a parking spot.
Reduced City Fees
Enjoy reduced construction & plan check fees.
Multiple ADUs
Build up to 8 ADUs on a multifamily lot and up to 3 on a single family lot.
Faster Approvals
Cities have accelerated their approval process for permits.
Add Square Footage
Increase the value of your home through additional square footage.
Los Angeles & Ventura County ADU Specialists
We are ALTO BUILDERS
At Alto Builders, we specialize in designing and building accessory dwelling units (ADUs), often called granny flats, casitas, guest houses, or in-law suites, throughout Los Angeles and Ventura County. As a licensed general contractor, we manage every aspect of the ADU process—from design and permitting to construction—ensuring a seamless experience from start to finish. Our mission is to bring predictability and peace of mind to your backyard ADU project, with all services handled under one roof for full accountability.
We offer a range of options, including both standard and custom ADU floor plans, tailored to meet the needs of multigenerational families and real estate investors alike. Our expert team oversees every detail, from initial planning and budgeting to material selection, design, plan checks, permitting, and construction.
With a streamlined, end-to-end approach, we consistently deliver projects on time and within budget, without compromising on quality. Backed by over 30 years of industry experience and glowing client feedback, we are committed to providing an exceptional customer experience at every stage of your ADU journey.
Paul Manfredi
Simon Manfredi
Owner

Owner






























